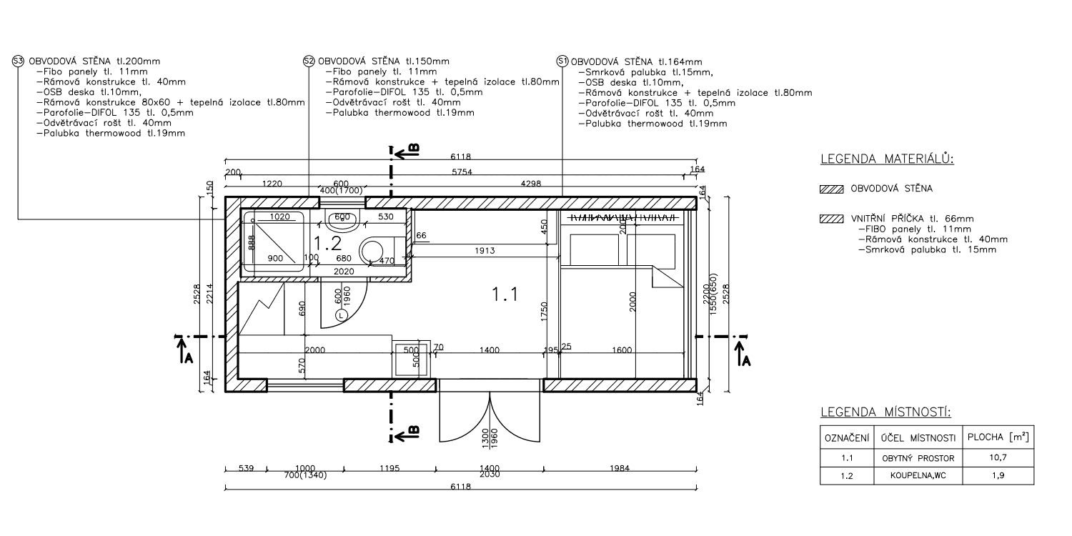
KODU 40
od Baraczek & Kodu
Počet variant domu:1
2+kk40 m2
KODU 40 není jen dům s 2 místnostmi a 2 lofty. Je to možnost, jak si rychle, chytře a legálně rozšířit prostor pro život nebo podnikání.
- Chytrý interiér
- Design
- Trvalé bydlení
Celková cena od
1 990 000 KčFinancování
již od 13 600 Kč




































































































































































































































