Nachytřovací místo Kudy kam
55 minut ze Smíchova
Místo, které vám ukáže cestu...
Sedlčansko je kraj, kde se svět zpomalí. Ráno vás vzbudí světlo vycházejícího slunce, večer uspí ticho polí a lesů okolo. A mezi tím? Čas na sebe. V našem tiny housu Kudy kam si na vlastní kůži zažijete, jaké to je – žít jednoduše, v propojení s přírodou a bez zbytečností.
Kudy kam je nachytřovací útočiště a "zkušebna" v krásné přírodě s nádhernou venkovní saunou pro ty z vás, kdo máte vlastní sen o tiny housu nebo glampingu.
Přijeďte na návštěvu do “Kudy kamu” a nahlédněte pod pokličku celého procesu pořízení tiny domku a života v malém. Nic netajíme, vše vám rádi ukážeme. V Kudy kamu na vás bude čekat sada kartiček s otázkami, užitečné tipy, tužka a blok. Popusťte uzdu fantazii, zasněte se a když si otázky poctivě zodpovíte, odjedete s jasným záměrem a akčním plánem, jak svůj sen zrealizovat.
Cena je 2.500Kč / noc a minimální délka návštěvy jsou dvě noci.
Proč Kudy kam?
- 1 hodina jízdy z Prahy, krásné Sedlčansko
- Spaní až pro 4 lidi (nejen pro páry, ale i pro rodinu s dětmi)
- Výhled do otevřené krajiny, hned pod lesem
- Sauna Zenbox k soukromému ohřátí těla i mysli
- Okolí plné výletů: turistika, cyklo, řeka, koně, hospůdky
- Místo, kde si ujasníte, kudy se chcete vydat se svým vlastním snem
👉 Zarezervujte si návštěvu v Kudykamu a zjistěte, kudy kam. Napište si o svůj termín na e-mail kudykam@kodu.cz.
Těšíme se na vás! :-)

Základní informace
Pozemek
- WiFi
- Kávovar
- Parkování
- Pro 2 osoby
Vybavení
- WiFi
- Pro 2 osoby
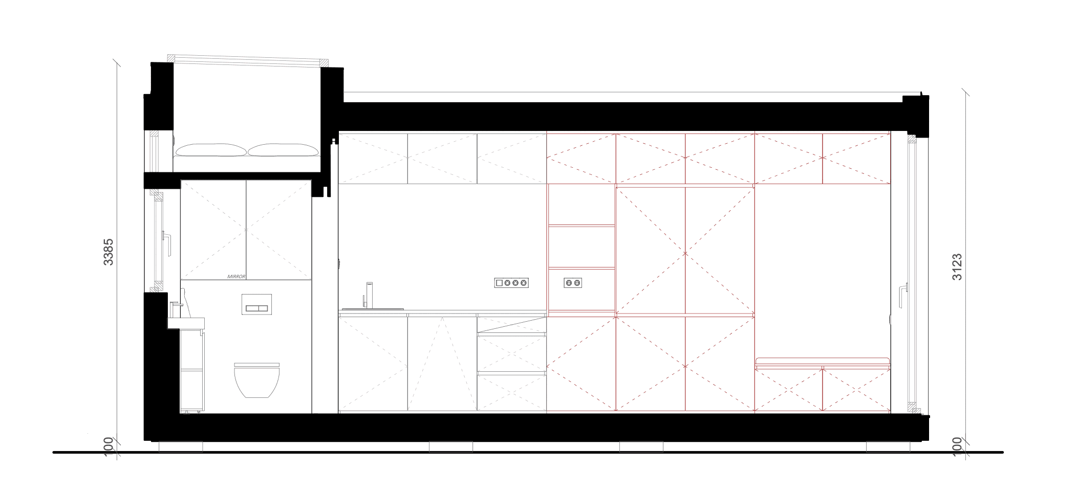
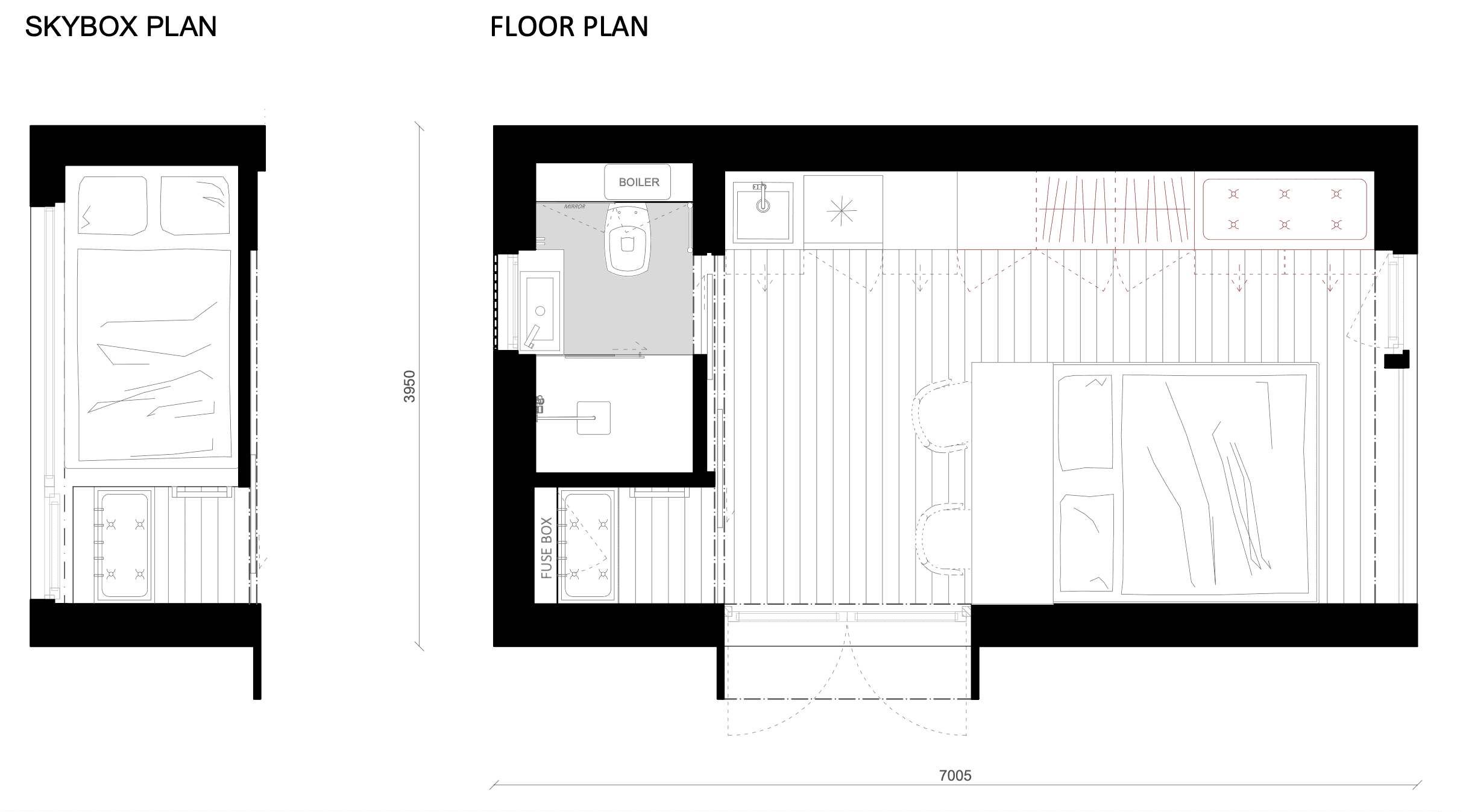
Vyzkoušíte tento domek:
Zatímco interiér našeho Kudy kamu je doladěný do posledního detailu, okolí se různě proměňuje a upravuje. Své finální podoby se dočká během jara 2026. Děkujeme za pochopení a že jste s námi na cestě k ještě krásnějšímu Kudy kamu!

















